4款二层小户型农村自建房设计图,不仅实用还漂亮!
4款二层小户型农村自建房设计图,不仅实用还漂亮!
农村建房不一定需要太多的投资,也不一定非要建的豪华奢侈,功能够用就行,外观适合自己的审美,家人也喜欢就好。
小户型的建筑成本相对较低,这对于农村成本人来说是一个重要的考虑因素。而且小户型的房屋更容易维护和打扫,选择建小户型能够更好地满足居民的实际需求,是一个更为合适的选择。
今天分享几款适合农村的小户型别墅设计图,不仅实用还漂亮!
01

这个户型占地79.98平,80㎡左右,开间8.36米,进深9.06米,建筑面积152.74平方米,砖混结构,造价经济实用,总高度8.4米,主体造价15-18万。

一层:客厅、餐厅、厨房、卧室、卫生间
一层主要为公共生活空间,南面设有一间卧室,给老人居住。

二层:起居厅、3间卧室、卫生间、露台
二楼设有一个小露台,增加室内的采光和通风,也可以作为晾晒衣物的平台。
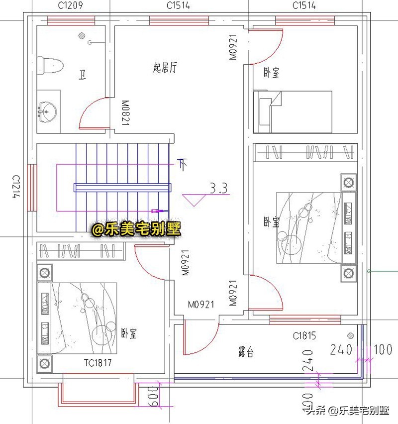
02

开间11.16米,进深9.16米,占地面积107.16平方米,总建筑面积207.93平方米
砖混结构,主体造价18-22万,总高度9.3米
建筑整体为简约风格,立面配色较为淡雅,通过超大落地窗搭配小阳台营造温馨居住氛围。

一层:客厅、餐厅、厨房、卧室、卫生间
入户大客厅,符合农村住宅标准。

二层:休息厅、3间卧室、卫生间、阳台
03

漂亮经济实用二层农村小别墅平顶乡村自建房设计图,造价经济,施工简单,非常适合农村自建平顶房选择。
开间:10.3米 进深:10.3米 占地面积:118.14平方米, 总建筑面积:234.32平方米
砖混结构 主体造价:20-23万

一 层: 玄关、客厅、餐厅、厨房、2卧室、楼梯间、卫生间

二 层: 客厅(带阳台)、主卧(带阳台、书房)、2次卧、卫生间
04

开间10.2米,进深10.2米,占地面积104.9平方米,建筑面积202.6平方米
砖混结构,总高度9.48米 ,主体造价20-24万
外墙采用文化石和面砖装饰,十分耐看,室内主要以舒适宽敞为原则,各个空间的采光及通风效果的很好,同时十分宽敞。


一层:门厅、客厅、餐厅、厨房、老人房、卧室、卫生间

二层:活动室、4间卧室、卫生间、阳台
#文章首发挑战赛#
标签:
